窗体顶端
窗体底端
兹有anime1
松山湖校区机电楼12E108 500吨压力实验机设备地基改造[采购编号:分散(2023)051]采购,现向社会供应商进行询价,符合相应资格条件的供应商根据询价通知书的要求进行报价。项目的采购、质量、服务需求和供应商报价所要具备的条件如下:
一、工程基本情况:
1.项目名称:anime1
松山湖校区机电楼12E108 500吨压力实验机设备地基改造
2.项目内容:施工内容主要包机电楼12E108拟安装的500吨压力试验机的基础进行改造,厂家图纸和基础承载力要求详见附件厂家提供的500吨试验机地基图纸,包工包料包安全等(具体详见项目报价详细清单)。
3.项目施工地点及其规模:项目地点为东莞市松山湖大学路1号anime1
松山湖校区机电楼12E108,投资规模为49963.31元。
4.项目供货工期:
开标确定施工单位后三天内签定合同,开标后第二天开始计算施工工期,并于确认中标后30天内完成施工内容,并需配合检测机构完成专项检测;
5. 质量和技术要求:标准合格,按国家、省、市及行业现行的相关文件和规定执行。
6.承包方式:
(1)总价一次包干,包供货包安装包调试。
(2)按国家规定由乙方缴纳的各种税收已包含在本项目总报价内,由乙方向税收部门支付。
(3)项目除变更外,总价一次包定,结算时不作调整。
二、供应商要求
1. 供应商资格要求:
(1)具备合法资格和能力生产或经营采购文件规定的货物和有能力提供采
购文件规的服务的国内企业法人;须具备市级(或以上)住房和城乡建设部门颁发的《建筑业企业资质证书》资质类别及等级为:建筑工程施工总承包三级或以上,或特种工程(结构补强)专业承包(不分等级)。
(2)报价人必须具有相应的售后服务能力;
(3)参加本次采购前三年内(含其授权的下属单位、分支机构),在经营活
动中没有被相关行政单位和司法机构作出停业整顿或不能参加有关报价的违法记录。
(4)单位负责人为同一人或者存在直接控股、管理关系的不同供应商,不
得参加同一合同项下的采购活动;
Ø 注:本项目不接受联合体投标。
2. 供应商须递交资料如下(资料密封在一个文件袋中,并在文件袋中注明项目编号、项目名称、投标单位、联系人、投标日期等,并盖好公司印章)。
(1)营业证照。
(2)报价总表。
(3)项目报价详细清单。
(4)法定代表人身份证复印件(正、反面)。
(5)法定代表人(或单位负责人)授权委托书(原件)、授权代表身份证复印件(如为法人代表提交资料则该项不需要提供)。
(6)资格声明函。
(7)在经营活动中没有重大违法记录的书面声明。
以上证照等资料的复印件全部加盖公司公章。
窗体顶端
三、项目预算:
本项目最高限价为49963.31元。
四、定标办法:
符合采购需求、质量和服务且相等的前提下,按报价低于平均价最接近的原则确定供应商,超过最高限价作无效处理。
五、合同款支付方式:
1.项目不支付预付款;完成全部合同内容且并经验收合格后,采购人一次性支付承包人合同价款。
六、公告及提交报价时间、地址和联系人:
1.公告时间:2023年4月24日至2023年4月28日,上午8:30至12:00,下午14:00至16:30。
2.报价资料提交时间:2023年4月29日至2023年5月1日,上午8:30至12:00,下午14:00至16:30。
3.报价资料提交地点:
广东省东莞市松山湖大学路1号anime1
(松山湖校区)机电楼12G201,提交报价人如未申请入校,请电话联系并到学校西门(松山湖学府路)进行资料移交。
4.联系方式:联系人:夏老师, 联系电话:18814091031、22862691
附件1:报价总表; 附件2:项目报价详细清单;附件3:法定代表人身份证明书;附件4:法定代表人授权委托书附件;5:资格声明函;附件6:在经营活动中没有重大违法记录的书面声明;附件7:报价资料袋(密封)封面页;附件8:500吨试验机地基图;附件9:现场照片与图纸。
资产与实验室管理处
2023年4月24 日
附件1 报价总表
报价总表
项目名称:anime1
松山湖校区机电楼12E108 500吨压力实验机设备地基改造
投标人名称: 采购编号:
序号 | 项目名称 | 单位 | 数量 |
金额 (元)
| 备注说明 |
1 | anime1
松山湖校区机电楼12E108 500吨压力实验机设备地基改造 | 项 | 1 |
|
|
总价 | 小写: (大写:) |
投标人代表签字: 联系电话:
单位盖章:
日 期:
附件2 项目报价详细清单
项目报价详细清单
项目名称:anime1
松山湖校区机电楼12E108 500吨压力实验机设备地基改造
投标人名称: 采购编号:
单位工程招标控制价汇总表 |
工程名称: | anime1
松山湖校区机电楼12E108 500吨压力实验机设备地基改造 | 标段: | 第1页 共1页 |
序号 | 汇总内容 | 金额(元) | 其中:暂估价(元) |
1 | 分部分项工程费 |
| |
2 | 措施项目费 |
| |
2.1 | 绿色施工安全防护措施费 |
| |
2.2 | 其他措施项目费 |
| |
3 | 其他项目费 |
| |
3.1 | 暂列金额 | | |
3.2 | 暂估价 | | |
3.3 | 计日工 | | |
3.4 | 总承包服务费 | | |
3.5 | 索赔费用 | | |
3.6 | 现场签证费用 | | |
3.7 | 预算包干费 |
| |
3.8 | 工程优质费 |
| |
3.9 | 消纳费 |
| |
3.10 | 其他费用 |
| |
4 | 规费 |
| |
5 | 税前工程造价 |
| |
6 | 增值税销项税额 |
| |
7 | 工程造价 |
| |
8 | 其中:人工费 |
| |
招标控制价合计 |
| |
|
|
|
|
|
|
|
分部分项工程和单价措施项目清单与计价表 |
工程名称: | anime1
松山湖校区机电楼12E108 500吨压力实验机设备地基改造 | 第1页, 共2页 |
序号 | 项目编码 | 项目名称 | 项目特征描述 | 计量 单位 | 工程量 | 金 额(元) |
综合单价 | 合价 | 其中:暂估价 |
1 | 010501003001 | 混凝土基础C40 | | m3 | 11.780 |
|
| |
2 | 010515001001 | 钢筋 HRB400 HRB400 Φ18-Φ25 | | t | 0.760 |
|
| |
3 | 010515001002 | 钢筋制安费 | | t | 0.760 |
|
| |
4 | 010516003001 | 植筋φ18 | | 个 | 88.000 |
|
| |
5 | 011101001001 | 凿毛 | | m2 | 26.610 |
|
| |
6 | 011101001002 | 拉拔试验 | | 项 | 1.000 |
|
| |
7 | 011101001004 | 产品保护 | | 项 | 1.000 |
|
| |
8 | 011101001005 | 垃圾外运 | | 项 | 1.000 |
|
| |
9 | 011101001006 | 预留设备安装孔 | | 个 | 6.000 |
|
| |
10 | 011101001007 | 辅材 | | 项 | 1.000 |
|
| |
| | 措施项目 | | | | | | |
| AQFHWMSG | 绿色施工安全防护措施费 | | | | | | |
11 | MBZC001 | 模板的支架 | | t | 1.000 | | | |
12 | SGXCWDHLSZDWD001 | 施工现场围挡和临时占地围挡 | | 项 | 1.000 | | | |
13 | SGWDZM001 | 施工围挡照明 | | 项 | 1.000 | | | |
14 | LSGGJTD001 | 临时钢管架通道 | | 项 | 1.000 | | | |
15 | 粤011701014001 | 独立安全挡板 | | m2 | 1.000 | | | |
16 | DZSBJC001 | 吊装设备基础 | | 项 | 1.000 | | | |
17 | FCJZLSSGFHP001 | 防尘降噪绿色施工防护棚 | | m2 | 1.000 | | | |
18 | SGBD001 | 施工便道 | | m | 1.000 | | | |
19 | YBYL001 | 样板引路 | | 项 | 1.000 | | | |
| QTCSF | 其他措施项目费 | | | | | | |
本页小计 |
| |
|
|
|
|
|
|
|
|
|
|
|
分部分项工程和单价措施项目清单与计价表 |
工程名称: | anime1
松山湖校区机电楼12E108 500吨压力实验机设备地基改造 | 第2页, 共2页 |
序号 | 项目编码 | 项目名称 | 项目特征描述 | 计量 单位 | 工程量 | 金 额(元) |
综合单价 | 合价 | 其中:暂估价 |
20 | 011707004001 | 二次搬运 | | 项 | 1.000 | | | |
21 | 011707005001 | 冬雨季施工 | | 项 | 1.000 | | | |
22 | 011707006001 | 地上、地下设施、建筑物的临时保护设施 | | 项 | 1.000 | | | |
23 | 011707007001 | 已完工程及设备保护 | | 项 | 1.000 | | | |
24 | CSQTFY001 | 其他费用 | | 项 | 1.000 | | | |
本页小计 | | |
合计 |
|
|
|
|
|
|
|
|
|
|
|
|
总价措施项目清单与计价表 |
工程名称: | anime1
松山湖校区机电楼12E108 500吨压力实验机设备地基改造 | 标段: | 第1页, 共1页 |
序号 | 项目编码 | 项目名称 | 计算基础 | 费率 (%) | 金额 (元) | 调整费率 (%) | 调整后金额(元) | 备注 |
1 | AQFHWMSG | 绿色施工安全防护措施费 | | | | | | |
1.1 | AXSJSCSXMF | 按系数计算的其他绿色施工安全防护措施费 | |
|
| | | |
1.1.1 | 011707001001 | 按系数计算的绿色施工安全防护措施费(包括绿色施工、临时设施、安全施工和用工实名管理) | 分部分项人工费+分部分项机具费 |
|
| | | 以分部分项工程的人工费与施工机具费之和的19%计算 |
| | 小计 | | |
| | | |
2 | QTCSF | 其他措施项目费 | | |
| | | |
2.1 | WMGDZJF001 | 文明工地增加费 | 分部分项人工费+分部分项机具费 | |
| | | 省级文明工地按2.10%计算;市级文明工地按1.20%计算 |
2.2 | 011707002001 | 夜间施工增加费 | 夜间施工人工费 | 20.00 |
| | | 按夜间施工项目人工的20%计算 |
2.3 | GGCSF001 | 赶工措施费 | (1-工期系数)*(分部人工费+分部机具费) | 30.00 |
| | | |
| | 小计 | | |
| | | |
合计 |
| | | |
|
|
|
|
|
|
|
|
|
|
|
|
其他项目清单与计价汇总表 |
工程名称: | anime1
松山湖校区机电楼12E108 500吨压力实验机设备地基改造 | 标段: | 第1页, 共1页 |
序号 | 项目名称 | 金额(元) | 结算金额(元) | 备注 |
1 | 暂列金额 | | | |
2 | 暂估价 | | | |
2.1 | 材料暂估价 | | | |
2.2 | 专业工程暂估价 | | | |
3 | 计日工 | | | |
4 | 总承包服务费 | | | |
5 | 索赔费用 | | | |
6 | 现场签证费用 | | | |
7 | 预算包干费 |
| | 按分部分项的人工费与施工机具费之和的7.00%计算 |
8 | 工程优质费 |
| | 市级质量奖按4.5%计算;省级质量奖7.5%计算;国家级质量奖12%计算; |
9 | 消纳费 |
| | 根据“穗建造价〔2019〕53号”,建筑垃圾处置企业(单位)收取的消纳费列入其他项目费用中,按照市场、工程情况预估,列明单价与工程量。 |
10 | 其他费用 |
| | |
总计 |
| | |
|
|
|
|
|
|
|
|
规费、税金项目计价表 |
工程名称: | anime1
松山湖校区机电楼12E108 500吨压力实验机设备地基改造 | 标段: | 第1页, 共1页 |
序号 | 项目名称 | 计算基础 | 计算基数 | 计算费率(%) | 金额(元) |
1 | 规费 | | | | |
2 | 增值税销项税额 | 税前工程造价 |
|
|
|
合计 | |
|
|
|
|
|
|
|
|
|
投标人代表签字: 联系电话:
单位盖章: 日 期:
附件3 法定代表人身份证明书
法定代表人身份证明书
致:anime1
同志,现任我单位 职务,为法定代表人,特此证明。 |
单位名称: |
单位地址: |
代表人姓名: | 代表人联系电话: |
代表人性别: | 代表人年龄: |
代表人身份证号码: | 营业执照或事业单位法人证书号码: |
单位性质: | 经营期限: |
主营(产): |
兼营(产): |
进口物品经营许可证号码: |
特此证明! |
说明: 1)法定代表人为企业事业单位、国家机关、社会团体的主要行政负责人。 2)内容必须填写真实、清楚、涂改无效,不得转让。 |
|
| 投标人名称(加盖公章): |
| 法定代表人(签名或盖私章): |
| 日期: 年 月 日 |
|
|
|
须附:法定代表人有效期内身份证复印件
附件4 法定代表人授权委托书
法定代表人授权委托书
致:anime1
本人 (姓名) 系 (投标人名称) 的法定代表人,现委托 (姓名) 为我方合法代理人。代理人根据授权,以我方名义签署、澄清、说明、补正、递交、撤回、修改 (项目名称) (采购编号: )投标文件、签订合同和处理有关事宜,其法律后果由我方承担。
本委托书于 年 月 日签字生效,特此证明。
被授权人无转委托权。
| 投标人名称(加盖公章): |
| 法定代表人(签名或盖私章): |
| 身份证号码: |
| 被授权人(签名或盖私章): |
| 身份证号码: |
| 日期: 年 月 日 |
须附:被授权人有效期内身份证复印件
附件5 资格声明函
资格声明函
anime1
:
关于贵单位 年 月 日发布 项目(采购编号: )的采购公告,本公司(企业)愿意参加投标,并声明:
一、本公司(企业)具备《中华人民共和国政府采购法》第二十二条规定的条件:
(一)具有独立承担民事责任的能力;
(二)具有良好的商业信誉和健全的财务会计制度;
(三)具有履行合同所必需的设备和专业技术能力;
(四)有依法缴纳税收和社会保障资金的良好记录;
(五)参加政府采购活动前三年内,在经营活动中没有重大违法记录;
(六)法律、行政法规规定的其他条件。
二、根据《中华人民共和国政府采购法实施条例》的规定,本公司(企业)如为采购项目提供整体设计、规范编制或者项目管理、监理、检测等服务的供应商,不再参加该采购项目的其他采购活动。
三、我方承诺单位负责人为同一人或者存在直接控股、管理关系的不同供应商,不得同时参加本采购项目投标。
本公司(企业)承诺在本次招标采购活动中,如有违法、违规、弄虚作假行为,所造成的损失、不良后果及法律责任,一律由我公司(企业)承担。
特此声明!
备注:1.本声明函必须提供且内容不得擅自删改,否则视为无效投标。
2.本声明函如有虚假或与事实不符的,作无效投标处理。
附件6 在经营活动中没有重大违法记录的书面声明
在经营活动中没有重大违法记录的书面声明
致:anime1
:
本公司参加 (项目名称) (采购编号: )的采购活动,并声明:
本公司参加本采购项目采购前 (详见合格投标人资格要求) 年内在经营活动中没有因违法经营受到刑事处罚或者责令停产停业、吊销许可证或者执照、较大数额罚款等行政处罚。
特此声明!
附件7
项目编号:分散(20XX)XXX
项目名称:
anime1
XXXXXXXXXXXXXXXXXXXXXXXXXXXX项目
(询 价 采 购)
报
价
文
件
报价单位(盖章):
联 系 人:
联系电话:
报价日期:
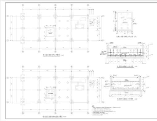
附件8 500吨试验机地基图

附件9 现场照片与图纸
机电楼12E108 500吨实验机设备地基改造项目
- 现场照片与图纸
一、项目名称:机电楼12E108压力试验机基础改建项目
二、项目地点:松山湖校区机电楼12E108室内
四、项目规模:室内基坑改建,面积约12.6㎡,深度1.5m等。
五、项目交付使用时间:2021年6月。
六、项目实施依据、理由:项目预算如下:
根据现有基坑面积为4.2×3=12.6平米,刚好与设备要求尺寸差距不大,需要对原基坑进行填充,采用混凝土浇筑,并进行配筋,设备基础下的地基承载力已经与原设计单位复核,满足要求,具体工程量如下:

七、项目基本情况介绍和目标:
满足新购买的设备安装,该位置旧设备已经淘汰,新设备和旧设备对基础的深度要求不一样,因此需要对原设备基坑进行浇筑以满足新设备的安装要求。
八、工程之外的其它配套项目(家具、空调、门禁、智能系统等)基本情况简介:无
九、二级组织机构项目负责人(项目协调人)、行政负责人联系方式。
项目协调人:夏立鹏,18814091031;
十、附件(相关预算下达文件或批复文件资料)。
基础设计图纸

anime1
2023年04月23日