兹有 土木工程本科教学自平衡式试验装置购置 项目采购,现向贵司进行询价,请根据询价通知书的要求进行报价。项目的采购基本情况、质量、服务需求和供应商报价所要具备的条件如下:
一、 项目名称:土木工程本科教学自平衡式试验装置购置
二、 采购编号:DGUT202111519
三、 采购预算:85,000元
四、 供应商资格要求
1、 投标人须符合《中华人民共和国政府采购法》第二十二条规定;
2、 单位负责人为同一人或者存在直接控股、管理关系的不同投标人,不得参加同一合同项下的政府采购活动;为本项目提供整体设计、规范编制或者项目管理、监理、检测等服务的供应商,不得参加本采购项目的采购活动;
3、 投标人未被列入“信用中国”网站(www.creditchina.gov.cn)“记录失信被执行人或重大税收违法案件当事人名单或政府采购严重违法失信行为”记录名单;不处于中国政府采购网(www.ccgp.gov.cn)“政府采购严重违法失信行为信息记录”中的禁止参加政府采购活动期间。(以采购代理机构于投标截止日当天在“信用中国”网站(www.creditchina.gov.cn)及中国政府采购网(www.ccgp.gov.cn)查询结果为准,如相关失信记录已失效,投标人需提供相关证明资料);
4、 本项目不接受联合体投标;
五、 项目概况及采购需求
1、 项目概况:采购一套装置包含20吨自平衡加载框架、20吨千斤顶组件、简支梁辅具、钢桁架试样完成土木工程本科教学试验。 主要参数: 最大承载200kN 行程:200mm ;
2、 项目工期/交货期:签定合同后30 个日历天内完成;
3、 交货地点:anime1
松山湖校区anime1
,由供应商送货上门并承担运费;
4、 采购内容清单:
采购 内容 |
参考品牌 及型号 |
计量 单位 |
数量 |
市场参 考单价 |
配置标准及性能要求 |
土木 工程 本科 教学 自平 衡式 试验 装置 |
定制 (参见附 件:设 计技术 参数) |
台 |
1 |
85,000 |
一、自平衡加载框架(1套) 1、加载框架高度(长*宽*高): 2800*250*2500mm,承载力:200kN, 提供详细的有限元分析报告。 2、配备钢筋混凝土简支梁试件加载辅具: 弯曲支座:固定端铰支座和滑动端铰支座各2套 支墩:250mm*200mm 分配梁:1500mm,承载力200kN 二、20吨千斤顶组件(1台) 1、20吨千斤顶,行程200mm, 2、手动泵站低压排量为12.5ml/次,高压流量 为2.3ml/次,低压压力1MPa,高压压力35MPa。 3、配备20吨力传感器及球面加载座 三、角钢焊接钢桁架(1台) 简支跨度2000mm,跨中施加集中荷载时设计最 大承载力为4吨;桁架所有杆件均采用双30*3角 钢焊接。 四、静态数据采集系统(1套) 1、连续采样速率:静态最高采样速率5HZ/通道, 减少测量通道,最高动态采样速率200HZ/通道; 2、桥路方式:支持全桥、半桥、三线制1/4桥和 公共补偿1/4桥 3、供桥电压:2VDC; 4、应变量程:±60000με; 5、应变示值误差:不大于0.5%±3με; 6、触摸屏尺寸:7英寸; 7、内置存储容量:8GB; 五、数字式位移计(4套) 行程:100mm,全程输出:20000με,校正系数: 0.005mm/με,桥路电阻:75Ω,自重250g,配磁 力表座; 六、仪表架(4件) 采用碳钢焊接而成,表面镀锌,总高1.2m,且高 度可调 七、标准件及工具(1批) 内六角扳手14mm,1件 内六角扳手1.5-10mm,1套 开口扳手30mm,2件 活动扳手0-36mm,1件 弓形卸扣1t,4件 吊装带1t×1.5m,2件 八、可完成实验《钢筋混凝土结构设计》实验课程: 1)单筋矩形截面梁(适筋梁、超筋梁和少筋梁)的 破坏试验; 2)受弯构件斜截面破坏试验(剪压破坏、斜压破坏、 斜拉破坏)的破坏试验; 《钢结构设计》实验课程: 1)H型钢梁弯曲实验。 2)焊接钢架内力分布测试实验。 3)焊接钢架次应力测试实验。 5)组合结构内力测试分析实验。 6)结构次应力测量分析实验 以上需提供详细解决方案 |
5、售后服务要求
(1)自验收合格并交付使用之日起质保 1 年,若设备原厂家承诺的免费质保期高于前述标准的,按原厂家的免费质保期执行,所需费用包含在本项目总报价中。质保期内中标人对所供货物实行包修、包换、包退、包维护保养。
(2)质保期内,如设备或零部件因非人为因素出现故障而造成短期停用时,则质保期和免费维修期相应顺延。如停用时间累计超过60天则质保期重新计算。
6、 款项支付方式
货物到达采购人指定的地点且安装、调试完毕,经采购人验收合格、办理完全部验收手续后,采购人在20个工作日内以银行转账方式向中标人支付合同总价的100%款项。
7、 验收方式
由项目使用部门验收小组组织验收。
六、 定标方式
供应商完整提交第八条款规定的资料,经审核符合资质要求的入围供应商,在符合采购需求、质量和服务且相等的前提下,按报价最低的原则确定供应商,超过预算限价作无效处理。
七、 报价等资料提交时间、地点及联系方式
1、公示时间:2021年12月3日 至2021年12月7日,上午8:30至12:00,下午14:00分至17:00。
2、提交时间:2021年12月8日 至 2021年12月10日,上午8:30至12:00,下午14:00分至17:00。
3、提交地点:广东省东莞市松山湖大学路1号anime1
机电楼12G201办公室。
4、联系方式:联系人 夏立鹏 联系电话:0769-22862691/18814091031
八、 供应商须提交资料(因疫情关系,如下资料可邮寄,邮寄地址及联系人详见上述第七条)
注意:以下第1项资料复印件和第2-5项资料原件加盖投标人公章密封在一个文件袋中,并在文件袋表面注明投标项目名称、招标人、投标人、投标日期等。中标人在收到成交通知后一个星期内提供证照原件备查。
1、营业证照、资格证明等材料:
①营业执照证书;
②税务登记证书;
③组织机构代码证。
(若为“三证合一”营业执照,则无需提供税务登记证(国、地税)和组织机构代码证;)
2、法定代表人身份证明书(格式详见附件1);
3、委托代理人需提供法定代表人授权委托书(格式详见附件2)、身份证复印件、供应商为期缴纳的社保证明并加盖供应商公章(如法人提交资料,则本项不需提交);
4、资格声明函(格式详见附件3);
5、在经营活动中没有重大违法记录的书面声明(格式详见附件4);
6、报价表(格式详见附件5);
附件:1、法定代表人身份证明书;
2、委托代理人需提供法定代表人授权委托书;
3、资格声明函;
4、在经营活动中没有重大违法记录的书面声明;
5、报价表。
anime1
生态环境与建筑工程学
2021年12月 3日
附件1法定代表人身份证明书
法定代表人身份证明书
致:anime1
同志,现任我单位 职务,为法定代表人,特此证明。 |
单位名称: |
单位地址: |
代表人姓名: |
代表人联系电话: |
代表人性别: |
代表人年龄: |
代表人身份证号码: |
营业执照或事业单位法人证书号码: |
单位性质: |
经营期限: |
主营(产): |
兼营(产): |
进口物品经营许可证号码: |
特此证明! |
说明: 1) 法定代表人为企业事业单位、国家机关、社会团体的主要行政负责人。 2) 内容必须填写真实、清楚、涂改无效,不得转让。 |
|
|
投标人名称(加盖公章): |
|
法定代表人(签名或盖私章): |
|
日期: 年 月 日 |
须附:法定代表人有效期内身份证复印件
附件2 法定代表人授权委托书
法定代表人授权委托书
致:anime1
本人 (姓名) 系 (投标人名称) 的法定代表人,现委托 (姓名) 为我方合法代理人。代理人根据授权,以我方名义签署、澄清、说明、补正、递交、撤回、修改 (项目名称) (采购编号: )投标文件、签订合同和处理有关事宜,其法律后果由我方承担。
本委托书于 年 月 日签字生效,特此证明。
被授权人无转委托权。
|
投标人名称(加盖公章): |
|
法定代表人(签名或盖私章): |
|
身份证号码: |
|
被授权人(签名或盖私章): |
|
身份证号码: |
|
日期: 年 月 日 |
须附:被授权人有效期内身份证复印件
附件3资格声明函
资格声明函
anime1
:
关于贵单位 年 月 日发布 项目(采购编号: )的采购公告,本公司(企业)愿意参加投标,并声明:
一、本公司(企业)具备《中华人民共和国政府采购法》第二十二条规定的条件:
(一)具有独立承担民事责任的能力;
(二)具有良好的商业信誉和健全的财务会计制度;
(三)具有履行合同所必需的设备和专业技术能力;
(四)有依法缴纳税收和社会保障资金的良好记录;
(五)参加政府采购活动前三年内,在经营活动中没有重大违法记录;
(六)法律、行政法规规定的其他条件。
二、根据《中华人民共和国政府采购法实施条例》的规定,本公司(企业)如为采购项目提供整体设计、规范编制或者项目管理、监理、检测等服务的供应商,不再参加该采购项目的其他采购活动。
三、我方承诺单位负责人为同一人或者存在直接控股、管理关系的不同供应商,不得同时参加本采购项目投标。
本公司(企业)承诺在本次招标采购活动中,如有违法、违规、弄虚作假行为,所造成的损失、不良后果及法律责任,一律由我公司(企业)承担。
特此声明!
备注:1.本声明函必须提供且内容不得擅自删改,否则视为无效投标。
2.本声明函如有虚假或与事实不符的,作无效投标处理。
附件4在经营活动中没有重大违法记录的书面声明
在经营活动中没有重大违法记录的书面声明
致:anime1
:
本公司参加 (项目名称) (采购编号: )的政府采购活动,并声明:
本公司参加本采购项目政府采购前 (详见合格投标人资格要求) 年内在经营活动中没有因违法经营受到刑事处罚或者责令停产停业、吊销许可证或者执照、较大数额罚款等行政处罚。
特此声明!
附件5:报价表
(提示:以下为货物采购报价表,可根据项目具体性质调整报价表,但货物类项目必须提供报价单、产品详细技术参数表及售后服务承诺;基建类项目必须提供工程量清单报价表及服务承诺;服务类项目必须提供报价单、详细服务说明及服务承诺。)
XXX公司报价单
序号 |
货物 名称 |
品牌 型号 |
厂商及产地 |
数量 |
单位 |
单价 |
分项 总价 |
备注 |
1 |
|
|
|
|
|
|
|
|
2 |
|
|
|
|
|
|
|
|
|
…… |
|
|
|
|
|
|
|
金额合计: 元 |
|
详细技术参数表
XXX公司(盖章)
20xx年xx月xx日
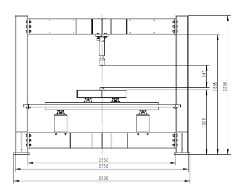
结构工程本科教学试验装置(非标定制)
1、设备组成及简介
本方案配备20吨自平衡加载框架、20吨千斤顶组件、简支梁辅具、钢桁架试样完成结构工程本科教学试验。本产品主要用于结构工程本科教学演示试验。具有结构简单、 安装方式、加载方式多样化。


图纸
2、技术参数
单向油压千斤顶输出压力200kN,活塞行程200m
3、可完成实验
《钢筋混凝土结构设计》实验课程:
1)单筋矩形截面梁(适筋梁、超筋梁和少筋梁)的破坏试验;
2)受弯构件斜截面破坏试验(剪压破坏、斜压破坏、斜拉破坏)的破坏试验;
《钢结构设计》实验课程:
1)H型钢梁弯曲实验。
2)焊接钢架内力分布测试实验。
3)焊接钢架次应力测试实验。
5)组合结构内力测试分析实验。
6)结构次应力测量分析实验
4、配置及技术参数
4.1自平衡加载框架(1套)
1、加载框架高度(长*宽*高): 2800*200*2200mm,承载力:200kN,加载横梁可在高度方向上下调节,调整最小间距不小于100mm。支墩可在底座长度方向调整,提供详细的有限元分析报告。
2、配备钢筋混凝土简支梁试件加载辅具:
弯曲支座:固定端铰支座和滑动端铰支座各2套
支墩:250mm*200mm
分配梁:1500mm,承载力200kN
4.2 20吨千斤顶组件(1台)
20吨千斤顶,行程200mm,
手动泵站低压排量为12.5ml/次,高压流量为2.3ml/次,低压压力1MPa,高压压力35MPa。配有压力调节阀,可以重新校准输出压力,内置精密度高低压自动切换阀。
配备20吨力传感器及球面加载座
力传感器:20吨,综合精度0.1%FS,非线性《0.1%FS,重复性<0.05%FS,滞后《0.1%FS,灵敏系数温度影响《0.05%FS/10度,零点温度影响《0.05%FS/10度,适用温度范围-30度-70度,安全过载范围120%FS。
4.3 角钢焊接钢桁架(1件)
简支跨度2000mm,跨中施加集中荷载时设计最大承载力为4吨;桁架所有杆件均采用双30*3角钢焊接。
4.4 静态数据采集系统(1套)
24个通道
连续采样速率:静态最高采样速率5HZ/通道,减少测量通道,最高动态采样速率200HZ/通道
桥路方式:支持全桥、半桥、三线制1/4桥和公共补偿1/4桥
供桥电压:2VDC
应变量程:±60000με
应变示值误差:不大于0.5%±3με
触摸屏尺寸:7英寸
内置存储容量:8GB
通过液晶屏实现设备的采样控制与数据分析等功能
4.5 数字式位移计(4套)
行程:100mm,全程输出:20000µε,校正系数:0.005mm/µε,桥路电阻:75Ω,自重250g,配磁力表座
4.6 仪表架(4件)
采用碳钢焊接而成,表面镀锌,总高1.2m,且高度可调
4.7 标准件及工具(1批)
内六角扳手14mm,1件
内六角扳手1.5-10mm,1套
开口扳手30mm,2件
活动扳手0-36mm,1件
弓形卸扣1t,4件
吊装带1t×1.5m,2件